Rif: M/0416
EMPOLI
FIRENZE - zona Martignana - Piazzano
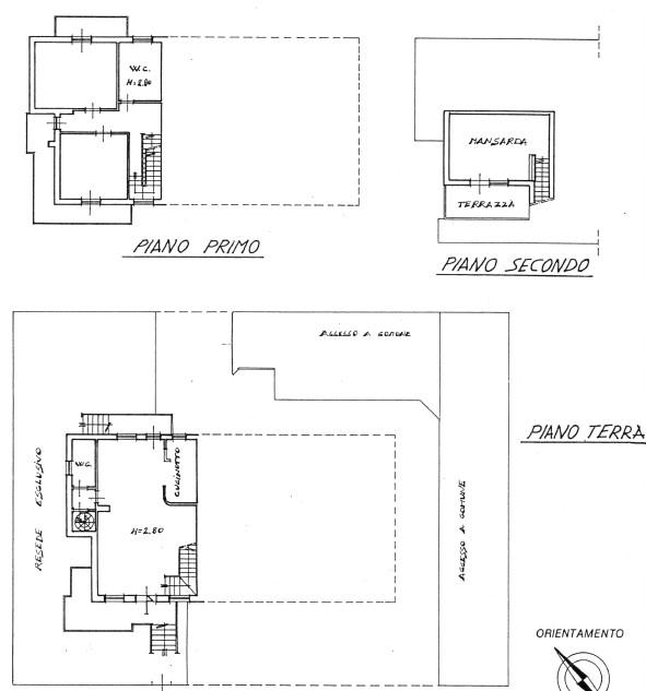
EMPOLI - RIF. M/0416 - NELLA PRIMA CAMPAGNA EMPOLESE, A 10 MINUTI DI AUTO DALL'USCITA EMPOLI EST, VILLETTA ANGOLARE LIBERA SU TRE LATI DI CIRCA 135 MQ CORREDATA DI AMPIO GIARDINO IN PARTE A RESEDE PER TOTALI 270 MQ CIRCA E ACCESSORIATA DI LABORATORIO PER ULTERIORI 100 MQ CA. INSERITA IN OTTIMO CONTESTO RESIDENZIALE ASSOLUTAMENTE DEFILATO E TRANQUILLO, AL SUO INTERNO E' COSI' COMPOSTA: ingresso, soggiorno open space che include la zona pranzo e l' angolo cottura e rivestito con un signorile marmo bianco, disimpegno, bagno con finestra e accesso diretto al giardino dalla terrazza esterna tergale. Tramite l'elegante vano scala si raggiunge il primo piano, dove troviamo la zona notte, costituita da un ampio disimpegno comunicante con un terrazzo angolare, due belle camere matrimoniali ed un bagno di dimensioni insolitamente generose; su questo piano sono presenti due terrazzi, uno dei quali comunicante sia con la camera che con il disimpegno. Al piano secondo ed ultimo è presente un'ampia mansarda vivibile adibita a "suite" e corredata di terrazza a tasca. Il laboratorio, collegato direttamente all' immobile tramite scala interna e comunque accessibile tramite un suo ingresso privato esterno è formato da vano di ingresso, locale laboratorio, un ufficio, un bagno con antibagno, un ripostiglio e da un locale deposito, oltre ad un resede carrabile dove è possibile parcheggiare comodamente. L'immobile rappresenta un'opportunità rara nel panorama immobiliare empolese in quanto raccoglie al suo interno tutte le caratteristiche comunemente desiderate: l'indipendenza, la comodità degli spazi interni, il giardino vivibile, le finiture distinte, ed uno stato generale quasi perfetto grazie all' attenta cura e manutenzione della proprietà. Classe energetica: F - ipe 150,00 - Rif. M/0416 - Eu. 390000,00
