Rif: SA2/313
VINCI
FIRENZE
VINCI, VENDESI TERRATETTO CON GIARDINO, RESEDE E DOPPIO GARAGE.
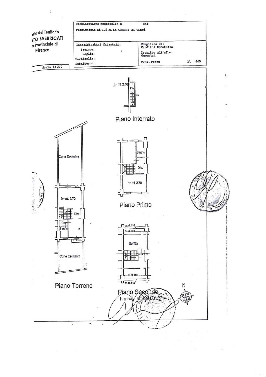
Vinci, proponiamo in vendita terratetto disposto su due livelli oltre la mansarda abitabile e garage.
Dal giardino esclusivo si accede all'abitazione composta da soggiorno, cucina abitabile con accesso al resede mattonellato di 25 mq, antibagno e servizio igienico con box doccia e finestra; al primo piano un'ampia camera matrimoniale con doppia finestra, cameretta e altro servizio igienico con box doccia e finestra; al piano superiore mansarda praticabile dove poter realizzare un'altra camera e con predisposizione per un terzo bagno.
Collegato direttamente all'immobile, al piano seminterrato, garage di circa 38 mq.
A completare la proprietà un posto auto scoperto.
ACCESSORI: Porta blindata, Infissi legno/doppio vetro camera, Zanzariere, Allarme perimetrale anche esterno, Caldaia a condensazione, Cappotto termico, Pannelli solari condominiali, Predisposizione fotovoltaico, Predisposizione aria condizionata, Parquet nella zona notte.
OTTIMO!!!
Si precisa che l'indirizzo presente non identifica l'esatta ubicazione dell'immobile questo al fine di tutelare la privacy e la riservatezza del venditore. Per maggiori informazioni e per organizzare una visita all'immobile o per proporvi alternative immobiliari adatte alle vostre esigenze potete contattare telefonicamente o tramite e-mail l'agenzia e dare il seguente riferimento SA2/313
Vinci, proponiamo in vendita terratetto disposto su due livelli oltre la mansarda abitabile e garage.
Dal giardino esclusivo si accede all'abitazione composta da soggiorno, cucina abitabile con accesso al resede mattonellato di 25 mq, antibagno e servizio igienico con box doccia e finestra; al primo piano un'ampia camera matrimoniale con doppia finestra, cameretta e altro servizio igienico con box doccia e finestra; al piano superiore mansarda praticabile dove poter realizzare un'altra camera e con predisposizione per un terzo bagno.
Collegato direttamente all'immobile, al piano seminterrato, garage di circa 38 mq.
A completare la proprietà un posto auto scoperto.
ACCESSORI: Porta blindata, Infissi legno/doppio vetro camera, Zanzariere, Allarme perimetrale anche esterno, Caldaia a condensazione, Cappotto termico, Pannelli solari condominiali, Predisposizione fotovoltaico, Predisposizione aria condizionata, Parquet nella zona notte.
OTTIMO!!!
Si precisa che l'indirizzo presente non identifica l'esatta ubicazione dell'immobile questo al fine di tutelare la privacy e la riservatezza del venditore. Per maggiori informazioni e per organizzare una visita all'immobile o per proporvi alternative immobiliari adatte alle vostre esigenze potete contattare telefonicamente o tramite e-mail l'agenzia e dare il seguente riferimento SA2/313
