Rif: RB505
VINCI
FIRENZE
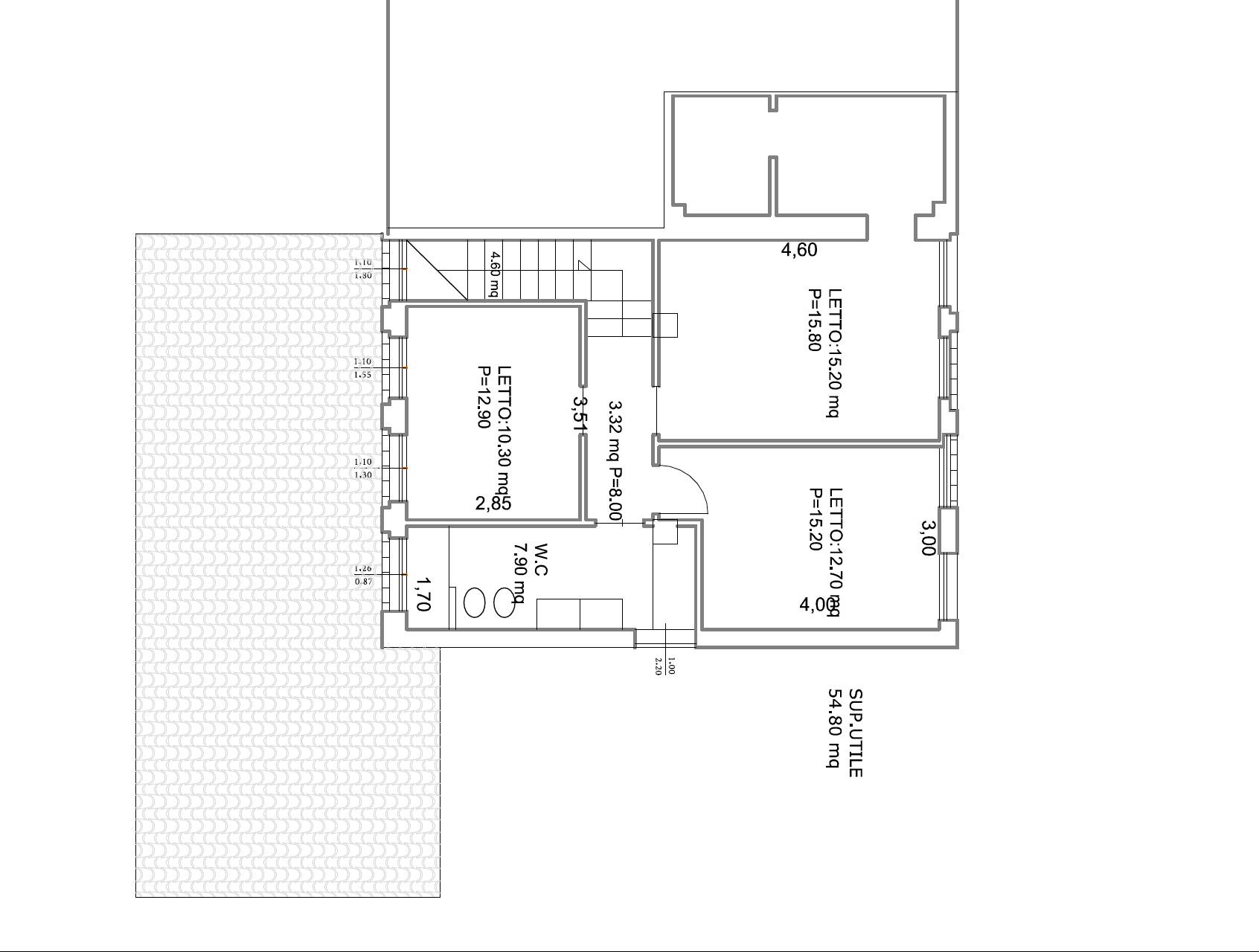
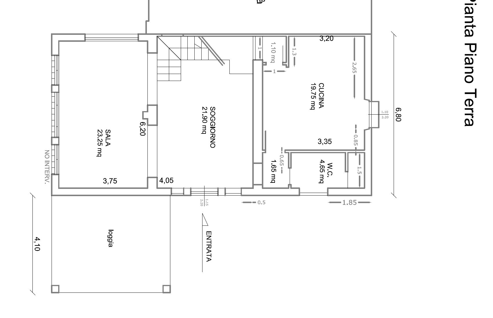
NELLA PRIMA CAMPAGNA TRA VINCI E SANT'ANSANO, A POCHISSIMI MINUTI DA SOVIGLIANA E DA TUTTI I PRINCIPALI SERVIZI, in contesto colonico bifamiliare, porzione angolare libera sui tre lati di casa colonica completamente ristrutturata nel 2015 mantenendo le caratteristiche tipiche del rustico toscano con travi a vista e mezzane. L'immobile ristrutturato con materiali e finiture di pregio , pavimenti in parquet e gres porcellanato, riscaldamento a pavimento, impianto di allarme e climatizzazione, è sicuramente di pregevole fattura con grande attenzione ai minimi dettagli. Disposto su due piani, è composto al piano terra da ingresso, soggiorno, cucina abitabile, ripostiglio, bagno finestrato con doccia , secondo soggiorno ampiamente finestrato e loggia. Una bella scala ci conduce al primo piano composto da due camere matrimoniali, una delle quali con grande cabina armadio, una camera doppia e un grande bagno finestrato provvisto di vasca e doccia. L'immobile è circondato sui tre lati da resede pavimentata e giardino.Il riscaldamento a pavimento alimentato con pompa di calore e i pannelli fotovoltaici garantiscono un'efficienza energetica di ultima generazione con classe energetica A3
Rif. RB505. Classe energetica A3. Richiesta Eu. 345.000,00
Rif. RB505. Classe energetica A3. Richiesta Eu. 345.000,00
