Rif: RB510
EMPOLI
FIRENZE - zona Ospedale - Santa Maria
EMPOLI – Spazioso appartamento di 5 vani con garage e ampio resede esclusivo
In una piccola palazzina residenziale, tranquilla e ben mantenuta, proponiamo in vendita un ampio appartamento posto al terzo piano senza ascensore. Lo stabile si presenta in ottime condizioni grazie al rifacimento di tetto e facciate effettuato nel 2011.
L'abitazione si sviluppa interamente su un unico livello, caratteristica che ne esalta la funzionalità e la comodità degli ambienti. L' appartamento si compone di ingresso, cucina cucina abitabile ben organizzata, dotata di un pratico ripostiglio/dispensa; a seguire, un ampio soggiorno con accesso diretto al balcone, perfetto per godersi un momento di relax all'aria aperta.
La zona notte, ben separata grazie a un disimpegno, ospita tre camere di ottima metratura, versatili per esigenze familiari o per chi desidera spazi dedicati a studio e lavoro. Completano la disposizione un bagno finestrato e una comoda lavanderia, dalla quale si accede a un secondo balcone di servizio, molto utile nella quotidianità.
L' appartamento si presenta in condizioni eccellenti, nel 2016 sono stati sostituiti circa la metà degli infissi, migliorando comfort e isolamento. Gli ambienti risultano gradevoli, ordinati e subito fruibili, rendendo l'immobile pronto per essere abitato senza necessità di interventi immediati.
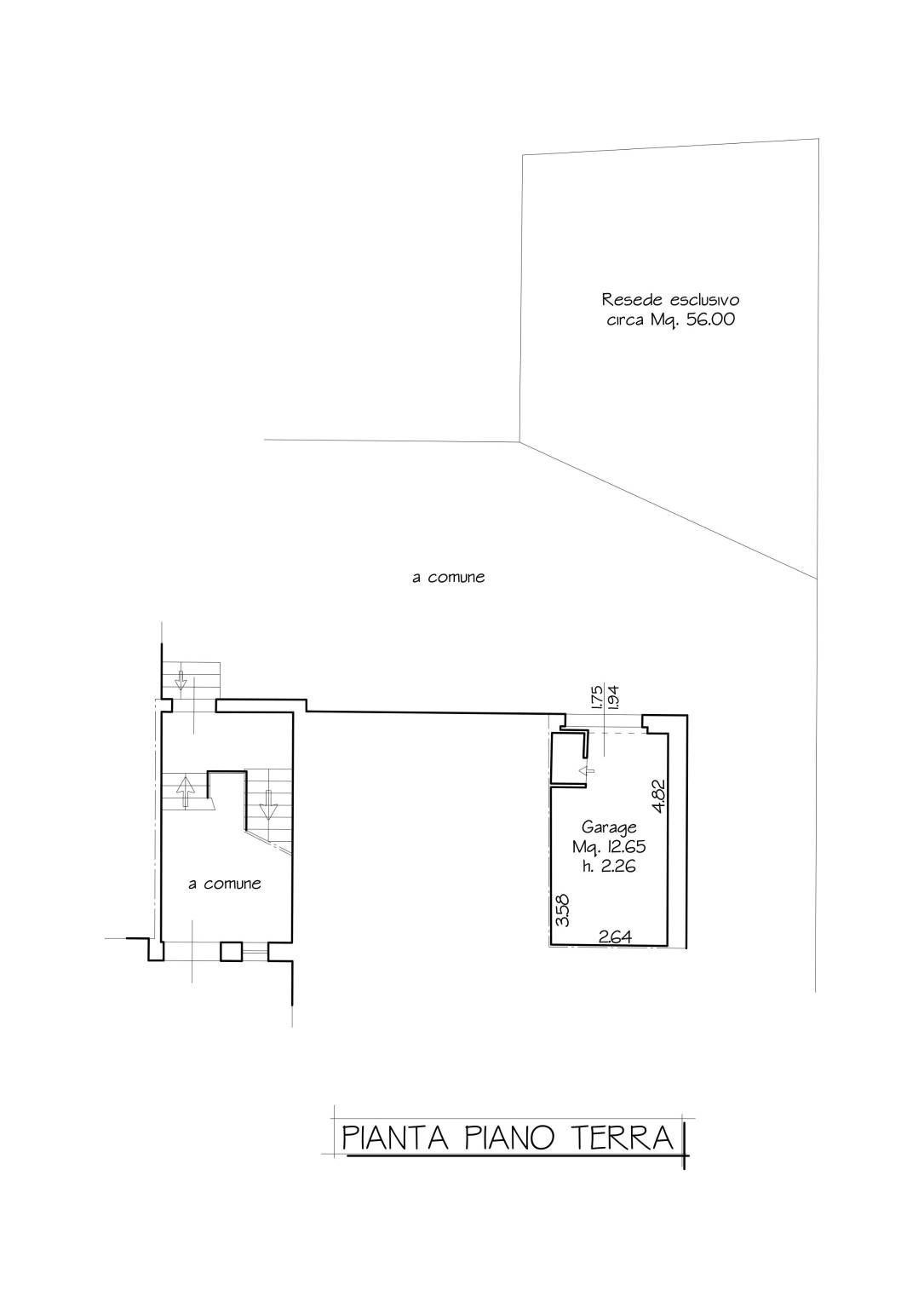
A completare la proprietà troviamo un garage di circa 13 mq, ideale per rimessa o deposito, e un ampio resede esclusivo di 56 mq, uno spazio prezioso che può essere utilizzato anche per parcheggiare comodamente l'auto, oltre che come area esterna privata da personalizzare.
Una soluzione ideale per chi cerca spazi generosi, un contesto sereno e ben curato e la praticità di ambienti funzionali, perfetti per una famiglia o per chi desidera vivere con comfort e tranquillità.
RIF. RB 510, Richiesta Eu. 190.000,00
In una piccola palazzina residenziale, tranquilla e ben mantenuta, proponiamo in vendita un ampio appartamento posto al terzo piano senza ascensore. Lo stabile si presenta in ottime condizioni grazie al rifacimento di tetto e facciate effettuato nel 2011.
L'abitazione si sviluppa interamente su un unico livello, caratteristica che ne esalta la funzionalità e la comodità degli ambienti. L' appartamento si compone di ingresso, cucina cucina abitabile ben organizzata, dotata di un pratico ripostiglio/dispensa; a seguire, un ampio soggiorno con accesso diretto al balcone, perfetto per godersi un momento di relax all'aria aperta.
La zona notte, ben separata grazie a un disimpegno, ospita tre camere di ottima metratura, versatili per esigenze familiari o per chi desidera spazi dedicati a studio e lavoro. Completano la disposizione un bagno finestrato e una comoda lavanderia, dalla quale si accede a un secondo balcone di servizio, molto utile nella quotidianità.
L' appartamento si presenta in condizioni eccellenti, nel 2016 sono stati sostituiti circa la metà degli infissi, migliorando comfort e isolamento. Gli ambienti risultano gradevoli, ordinati e subito fruibili, rendendo l'immobile pronto per essere abitato senza necessità di interventi immediati.
A completare la proprietà troviamo un garage di circa 13 mq, ideale per rimessa o deposito, e un ampio resede esclusivo di 56 mq, uno spazio prezioso che può essere utilizzato anche per parcheggiare comodamente l'auto, oltre che come area esterna privata da personalizzare.
Una soluzione ideale per chi cerca spazi generosi, un contesto sereno e ben curato e la praticità di ambienti funzionali, perfetti per una famiglia o per chi desidera vivere con comfort e tranquillità.
RIF. RB 510, Richiesta Eu. 190.000,00
Consistenze
| Descrizione | Superficie | Sup. comm. |
|---|---|---|
| Principali | ||
| Immobile - 3° piano | 93 Mq | 93 Mqc |
| Totale | 93 Mqc | |
